United Square - Level 23
Conventional Office
1/7
Location:UNITED SQUARE 101 THOMSON ROAD,307591
How to get there:1 min walk from Novena MRT station / North-South Line
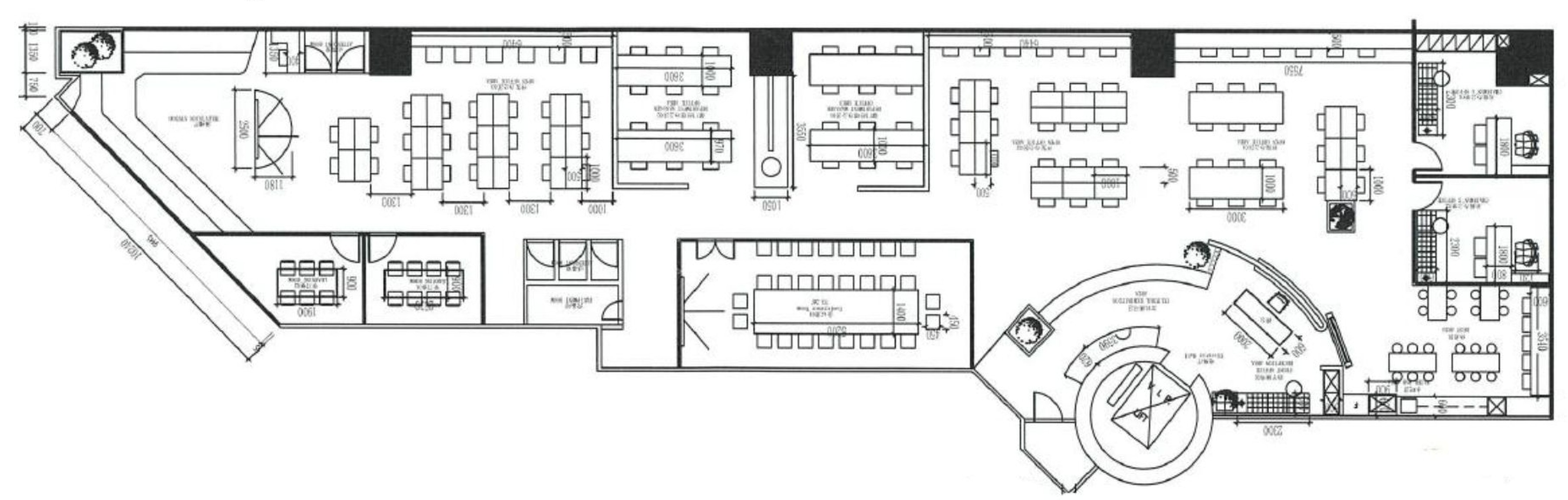
Floor Information
Floor
23
Size
5543 sqft
Capacity
36 ~ 55 pax
Rent
S$ 47,100
Price per Square
S$ 8.50
Remarks
Lobby Frontage
Available
August 2026
Fitted/Bare
Fully Fitted









